Villetta bifamiliare con giardino
Italiano
289.000 €

Villetta bifamiliare con giardino

Villa Bifamiliare in vendita • Borgo Virgilio (Virgilio) - Via Nenni , 51
IMMOBILE VISIONABILE ESCLUSIVAMENTE IN OPEN HOUSE IL GIORNO 21/03/2026 DALLE 9.00 ALLE 12.00 CON PRENOTAZIONE OBBLIGATORIA.

Nel comune di Borgo Virgilio, in contesto residenziale tranquillo e curato, proponiamo in vendita una raffinata villetta bifamiliare circondata da uno splendido giardino privato, ideale per chi desidera indipendenza, comfort e spazi esterni ben tenuti.

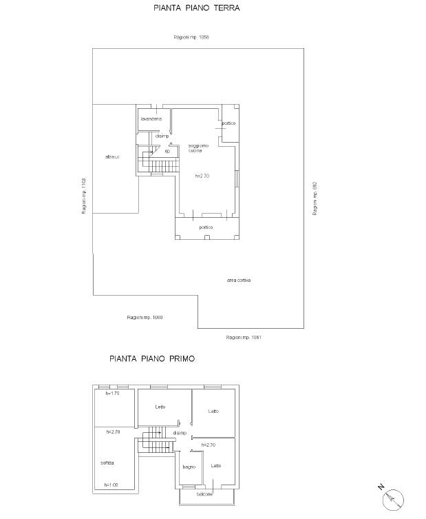
L’abitazione si sviluppa su due livelli ed è caratterizzata da ambienti luminosi e ben distribuiti.

Al piano terra troviamo una spaziosa zona living con soggiorno e cucina open space, un ambiente moderno e conviviale con accesso diretto al portico coperto e piastrellato, perfetto per pranzi all’aperto, cene estive e momenti di relax. Completano il piano un bagno di servizio e un ampio garage di circa 30 mq.

La zona notte al piano primo ospita tre camere da letto, di cui due matrimoniali e una camera tre quarti, oltre a bagno finestrato. A rendere la casa ancora più funzionale troviamo una splendida mansarda di circa 30 mq, uno spazio versatile perfetto come studio, sala hobby, palestra o area relax.

La proprietà è inoltre accessoriata con inferiate e impianto di allarme, elementi che garantiscono maggiore sicurezza e tranquillità.

Una soluzione abitativa perfetta per chi cerca privacy, spazi generosi e qualità della vita, a pochi minuti da Mantova e dai principali servizi.

CLASSE ENERGETICA - D

Per maggiori informazioni vieni a trovarci nel nostro ufficio ci trovi in Viale Gorizia 20/B - Mantova.
Oppure contattaci allo 0376.1410341 per prendere appuntamento.
Per informazioni inviare mail a: info@dymoraimmobiliare.it
Caratteristiche principali
Codice
AL162
Città
Borgo Virgilio (Virgilio)
Categoria
Villa Bifamiliare
Prezzo
289.000 €
Locali
5
Camere
3
Bagni
2
Mq
199
Box
1
Mq Box
30
Posti auto
1
Balconi
1
Mq Balcone
5
Classe energetica
D
165,37
Stato Immobile
Ottimo
Grado
Signorile
Panorama
Vista Aperta
Orientamento
Nord Est Sud
Lati Liberi
3
Giardino
Privato
Arredi
Solo Cucina
Tipo Soggiorno
Soggiorno
Tipo Cucina
A Vista
Riscaldamento
Autonomo
Tipo Riscaldam.
Caldaia
Tipo Impianto
Pavimento
Fonte Energetica
Metano
Acqua Calda
Autonoma
Raffrescamento
Split
Infissi
Legno Doppio Vetro
Serramenti
Ottimo
Persiana
Oscurante Legno
Pavim. Giorno
Gres Porcellanato
Pavim. Notte
Gres Porcellanato
Pavim. Cucina
Gres Porcellanato
Pavim. Bagno
Gres Porcellanato
Accesso Disabili
No
Accesso interno disabili
Parziale
Isolamento
Non presente
Isolamento termico
Nessuno
Isolamento acustico
Nessuno
Destinato a residenti
Si
Impianto d’irrigazione
Si

Accessori: Antifurto, Aria Condizionata, Armadio a Muro, Bagno Handicap, Cassaforte, Cancello Elettrico, Doppi Vetri, Fibra Ottica, Lavanderia, Porta Blindata, Ripostiglio, Zanzariere

Mappa
Via Nenni 51, Borgo Virgilio (MN)
Video
Richiedi informazioni
Invia
Condividi su
Cookie preference